上海涵霞实业有限公司厂房、办公楼规划▕ Planning of factory buildings and office buildings for Shanghai Hanxia Industrial Co., Ltd

上海涵霞实业有限公司入口大门
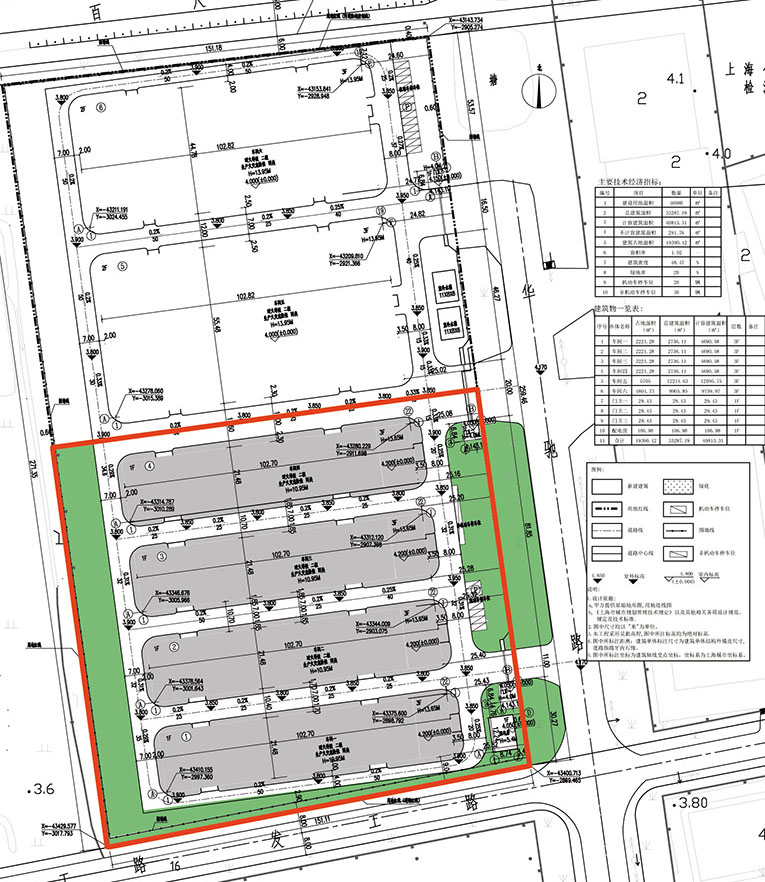
本地块位于上海市奉贤区发工路与驰华路交汇处西北区。建设用地面积为40080平方米,总建筑面积为33287.19平方米,计容建筑面积为40813.31平方米,不计容面积为291.76平方米,建筑占地面积为19390.12平方米,容积率为1.02,建筑密度为48.47%,绿地率为20%,机动车停车位为20辆,非机动车停车位为30辆。
本次规划内容为上海涵霞实业有限公司的厂房、办公楼。
上海涵霞贸易有限公司车间1、车间2、车间3、车间4、门卫1、门卫2、配电房以及内部道路和内部绿化规划。车间1-4占地面积均为2221.28平方米。总建筑面积为2736.11平方米。计容建筑面积为4690.58平方米。层数为3层。门卫1-2占地面积均为29.43平方米。总建筑面积为29.43平方米。计容建筑面积为29.43,层数为1层。配电房占地面积为106.98平方米,总建筑面积为106.98平方米,计容建筑面积为106.98平方米,层数为一层。
This area is located in the northwest of the intersection of Fagong Road and Chihua Road in Fengxian District, Shanghai. The construction land area is 40080 square meters, with a total construction area of 33287.19 square meters, a calculated construction area of 40813.31 square meters, and an excluded area of 291.76 square meters. The building covers an area of 19390.12 square meters, with a plot ratio of 1.02, a building density of 48.47%, and a green space ratio of 20%. There are 20 parking spaces for motor vehicles and 30 parking spaces for non motor vehicles.
The content of this plan is for the factory and office buildings of Shanghai Hanxia Industrial Co., Ltd.
Workshop 1, Workshop 2, Workshop 3, Workshop 4, Guard Room 1, Guard Room 2, Power Distribution Room, as well as internal road and green planning of Shanghai Hanxia Trading Co., Ltd. Workshop 1-4 covers an area of 2221.28 square meters. The total construction area is 2736.11 square meters. The total building area is 4690.58 square meters. The number of layers is 3. Guardians 1-2 both occupy an area of 29.43 square meters. The total construction area is 29.43 square meters. The total building area is 29.43 and the number of floors is 1. The distribution room covers an area of 106.98 square meters, with a total construction area of 106.98 square meters and a capacity building area of 106.98 square meters, with one floor.

上海涵霞实业有限公司规划位置

上海涵霞实业有限公司规划位置

上海涵霞实业有限公司规划总平面图

上海涵霞实业有限公司鸟瞰总图

上海涵霞实业有限公司鸟瞰局部图

上海涵霞实业有限公司鸟瞰局部花园图

上海涵霞实业有限公司内部装修图

上海涵霞实业有限公司内部装修图

上海涵霞实业有限公司内部装修图

上海涵霞实业有限公司内部装修图

上海涵霞实业有限公司内部装修图

上海涵霞实业有限公司内部装修图

上海涵霞实业有限公司内部装修图

上海涵霞贸易有限公司门厅

上海涵霞贸易有限公司内部装修图

上海涵霞贸易有限公司内部装修图

上海涵霞贸易有限公司内部装修图

上海涵霞贸易有限公司内部装修图

涵霞商学院

上海涵霞贸易有限公司内部装修图

上海涵霞贸易有限公司内部装修图

上海涵霞贸易有限公司内部装修图