上海游客中心州桥老街店▕ Zhougiao branch of Shanghai tourist center
项目地址:上海市嘉定区沙霞路68号▕ LOCATION:68 Shaxia Road, Jiading District, Shanghai
建筑面积:580平方米▕ AREA: 580 square meters
游客中心最早起源于美国,在美国“66计划"中产生,至今已有百年发展历程。国内“游客中心”的概念则在改革开放之初从国外相关著作中引入,随后在结合自身国情的基础上对其概念进行了演化,本方案立于“当代乡土化”、“建筑地域化"的设计理念,一方面就地取材,回收地震材料,降低建设成本,并将传统的建造工艺与现代化的建造技术结合起来,环保又不失特点;另一方面,该建筑在嘉定老街,汇龙潭旁边。外形也采用中式江南风格,我们室内与外观相互呼应,完美的融入地方环境,实现社会效益与经济效益的最大化。
Tourist Center originated in the United States, the United States in the 66 project to come into being, has a hundred years ofdevelopment. At the beginning of the reform and opening up, the concept of domestic tourist center was introduced from the relevanworks abroad, and then the concept evolved on the basis of its own national conditions. This project is based on the design conceptof "local" and "regional" construction. On the one hand, we can take materials localy, recover seismic materals, reduce constructioncosts, and combine tradiltional construction technigues with modern construction technioues On the other hand. the building is locatecon Old viading District Street, next to Longtan. Appearance also uses Chinese stvle jiangnan stvle, our interior and exterior should bemutually, perfect integration into the local environment, achieve social benefits and economic benefits of the maximum.

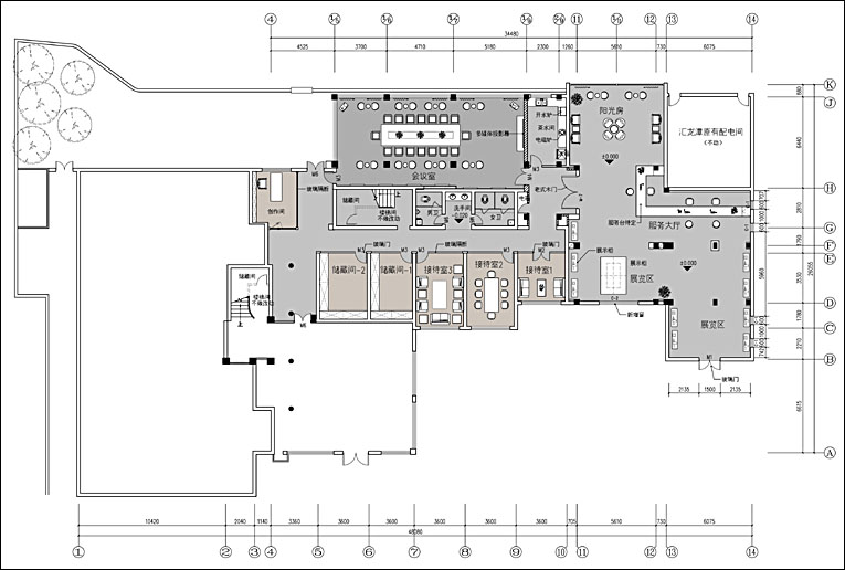
上海游客中心州桥老街店1F

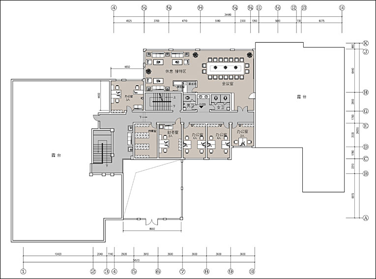
上海游客中心州桥老街店2F

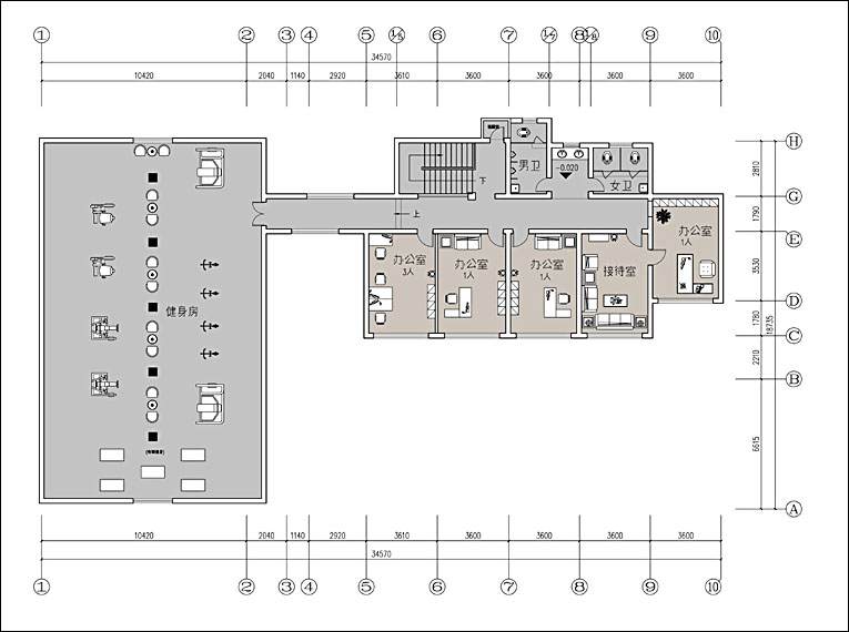
上海游客中心州桥老街店3F

上海游客中心州桥老街店门厅

上海游客中心州桥老街店接待台

上海游客中心州桥老街店休息区

上海游客中心州桥老街店会议室