洪鑫设计的嘉定影剧院正式投入营业▕ The Jiading Theater designed by Hong Xin has officially opened for business
2007年9月25冯小宁帶着《青藏线》在嘉定影剧院举行首映仪式,这也标志着修缮一新的嘉定影剧院正式投入营业。从前期洪鑫设计到后期豪成施工结束,前后跨2个年头。因为他是一个特殊的工程:一、它特殊在功能设备上,二、特殊在他这次修缮有特殊意义,造福嘉定市民,提高政府政绩,培养嘉定精神文明建设。
嘉定影剧院创建于1981年,2007年嘉定区委和区府投资1500多万元对嘉影进行全面改建修缮,新修缮的嘉影建筑面积5000多平方米,拥有1个电影大厅和2个豪华小厅,共计1054个座位,。观众坐席为豪华观摩软座,大坡度、无遮挡、超宽行距。
On September 25, 2007, Feng Xiaoning held the premiere ceremony of "Qinghai Tibet Line" at Jiading Cinema, marking the official opening of the newly renovated Jiading Cinema. From the initial design by Hongxin to the completion of the later construction by Haocheng, it spanned two years. Because it is a special project: firstly, it is special in terms of functional equipment; secondly, it has special significance in its renovation, benefiting the citizens of Jiading, improving government performance, and cultivating Jiading's spiritual civilization construction.
Jiading Cinema was founded in 1981. In 2007, the Jiading District Committee and Government invested over 15 million yuan in the comprehensive renovation and restoration of Jiaying. The newly renovated Jiaying building covers an area of over 5000 square meters and has one movie hall and two luxurious small halls, with a total of 1054 seats,. The audience seats are luxurious observation soft seats, with a steep slope, unobstructed, and ultra wide spacing.

嘉定影剧院外观实景照片
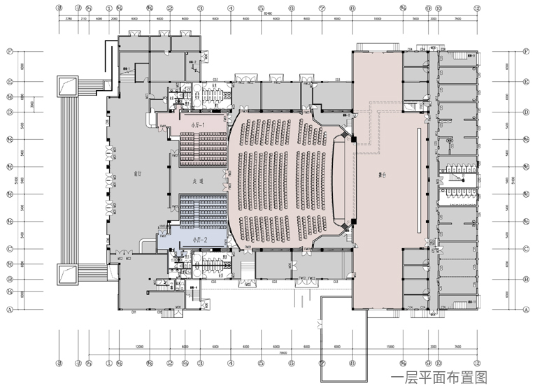
嘉定影剧院一层平面布置
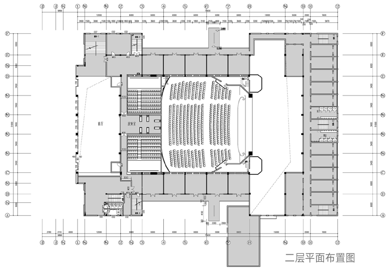
嘉定影剧院二层平面布置
嘉定影剧院室内实景照片【此张点击可看大图】
嘉定影剧院室内实景照片
嘉定影剧院室内实景照片
嘉定影剧院室内实景照片