百度Apollo Park(上海)室内外设计▕ Baidu Apollo Park (Shanghai) Interior and Exterior Design
地址:上海市嘉定区安亭镇墨玉南路888号▕ Address: No. 888 Moyu South Road, Anting Town, Jiading District, Shanghai
面积:10000平方▕ Area: 10000 square meters
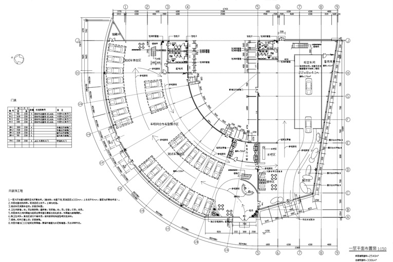
Apollo Park是百度Apollo生态和最新技术的试验场,也是百度无人驾驶产业落地的智能承载平台,更是Apollo生态的聚集中心。
上海的Apollo Park整体占地面积近1万平方米,是继北京、广州之后,百度在国内打造又一个的智能网联生态基地。
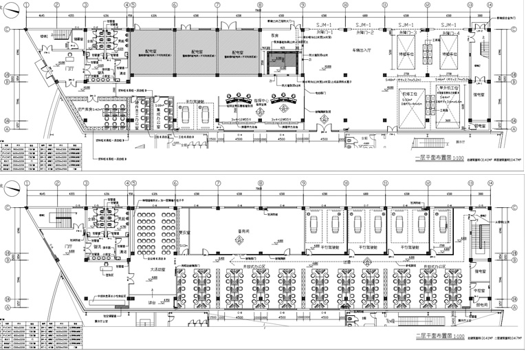
本次设计根据百度Apollo的使用性质、所处上海国际汽车城的环境和相应标准,运用现代、简约的技术手段,同时结合百度Apollo的理念,创造功能合理、满足百度Apollo的办公和展示需求。同时满足员工在物质和精神的需要,创造一个优美的室内外环境。这一空间环境既具有使用价值,满足相应的功能要求,也反映了百度Apollo企业文化、百度Apollo的工作氛围,同时也结合原建筑风格、环境气氛等因素。
Apollo park is the testing ground for Baidu's Apollo ecology and the latest technology, the intelligent bearing platform for Baidu's driverless industry, and the gathering center of Apollo ecology.
Apollo Park in Shanghai covers an overall area of nearly 10000 square meters. It is another smart Internet ecological base built by Baidu in China after Beijing and Guangzhou.
According to the use nature of Baidu Apollo, the environment of Shanghai International Automobile City and corresponding standards, this design uses modern and simple technical means, combined with the concept of Baidu Apollo, to create reasonable functions and meet the office and display needs of Baidu Apollo. At the same time, meet the material and spiritual needs of employees and create a beautiful indoor and outdoor environment. This space environment not only has use value and meets the corresponding functional requirements, but also reflects Baidu Apollo corporate culture and Baidu Apollo working atmosphere, but also combines the original architectural style, environmental atmosphere and other factors.









