东方国际集装箱(锦州)有限公司▕ Dongfang International Container (Jinzhou) Co., Ltd
项目地址:辽宁省锦州市经济技术开发区天山路9号▕ Project Address: No. 9 Tianshan Road, Economic and Technological Development Zone, Jinzhou City, Liaoning Province
项目面积:3900平方米▕ Project area: 3900 square meters
项目内容:本次设计为东方国际集装箱(锦州)有限公司办公大楼部分,共三层▕ Project content: This design is for the office building of Oriental International Container (Jinzhou) Co., Ltd., which consists of three floors
设计单位:悟美设计(上海悟美装饰设计有限公司)▕ Design Unit: Wumei Design (Shanghai Wumei Decoration Design Co., Ltd.)
设计人员:洪鑫 余明明 唐攀 ▕ Designers: Hong Xin, Yu Mingming, Tang Pan
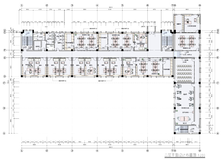
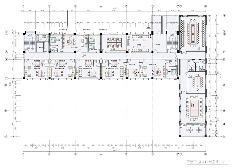
设计说明:本次办公楼设计中,平面规划自始至终遵循经济实用、功能需求完美、节能环保及人性化管理相结合的原则。同时结合办公需求和工作流程,科学合理的划分职能区域,也考虑员工与领导之间、职能区域之间的相互交流。在材料方面运用简洁,大方,耐磨,环保的现代材料,在照明采光上既使用全局照明,能满足办公的需要.同时又考虑自然光的运用,这样又简洁,大方,美观,又能充分体现出企业的形象与现代感,同时延续了环保节能的设计理念。 在平面功能分布上一楼以入门的门厅为界把工作区域划分为左边设计、研发和右面人事部门两大区域,走廊北侧为储藏、卫生间、会议室、物料部、机房。两侧为楼梯,走廊尽头为室内停车库和司机休息室。二楼以走廊为界限,南为箱东办公区,北为质控和财务,走廊尽头为健身区、会议室和基建办公区。三楼为领导办公区,南为总经理、副总经理、常务副总经理、贵宾室,北为来客办公、接待、常规办公区,走廊尽头为大贵宾室、小会议室、大会议室。这样即满足了办公需求同时有对人流进行了划分,领导办公设计在三楼,接近几位领导的办公室的是会议室和接待室,方便了领导进行会议和接待使用。设计中按照人体工程学和办公家具尺寸进行功能区域的大小划分。整个分区即能很好满足个部门的功能要求,对人流进行分流,同时有使个部门有机的结合起来。
Design Description: In this office building design, the floor plan follows the principles of economic practicality, perfect functional requirements, energy conservation and environmental protection, and humanized management from beginning to end. At the same time, based on office needs and workflow, scientifically and reasonably divide functional areas, and also consider mutual communication between employees and leaders, as well as between functional areas. In terms of materials, modern materials that are simple, generous, wear-resistant, and environmentally friendly are used. In terms of lighting and daylighting, global illumination is used to meet the needs of office work At the same time, we also consider the use of natural light, which is concise, generous, beautiful, and fully reflects the image and modernity of the enterprise, while continuing the design concept of environmental protection and energy conservation. On the first floor of the functional layout, the work area is divided into two main areas: the left design, research and development, and the right personnel department, with the entrance hall as the boundary. The north side of the corridor includes storage, bathroom, conference room, material department, and computer room. On both sides are stairs, and at the end of the corridor are an indoor parking garage and a driver's lounge. The second floor is bounded by a corridor, with the east office area to the south, quality control and finance to the north, and the fitness area, conference room, and infrastructure office area at the end of the corridor. The third floor is the leadership office area, the south is the general manager, deputy general manager, executive deputy general manager, and VIP room, the north is the guest office, reception, and regular office area, and the end of the corridor is the large VIP room, small conference room, and large conference room. This not only meets the office needs but also divides the flow of people. The leadership office is designed on the third floor, and the meeting room and reception room are located near the offices of several leaders, making it convenient for leaders to conduct meetings and receptions. In the design, functional areas are divided according to ergonomics and office furniture dimensions. The entire partition can effectively meet the functional requirements of each department, divert the flow of people, and organically integrate the departments.
本次设计最突出的亮点有两个:一、走廊两侧的墙体为透明玻璃,保证了自然的穿透,保持整栋大楼内部在不开灯的情况下依然明亮。二是每个办公区都设计一个独立封闭的资料室,这样既满足资料储藏又能保持办公区域干净、美观、整齐。
The most prominent features of this design are two: firstly, the walls on both sides of the corridor are made of transparent glass, ensuring natural penetration and keeping the entire building bright even without lights. Secondly, each office area is designed with an independent and enclosed data room, which not only meets the requirements of data storage but also keeps the office area clean, beautiful, and tidy.
项目状况:东方国际集装箱(锦州)有限公司由中国远洋海运集团有限公司2005年投资开工建设,是专业从事国际标准集装箱及各种特殊用途集装箱设计、制造和售后服务,兼营房屋箱设计、制造环保垃圾箱、托盘、金属结构制造、非压力罐体、箱用零部件、板材预处理和钢结构件加工与销售的企业。
公司地处中国辽宁省锦州市经济技术开发区天山路9号,位于环渤海经济区中心地带。紧邻京沈铁路,与京沈、锦连等高速公路网相连。毗邻大连港、营口港、秦皇岛新港,距离锦州港仅5公里,地理位置非常优越,是目前东北地区最大的集装箱制造企业。
Project status: Dongfang International Container (Jinzhou) Co., Ltd. was invested and started construction by China Ocean Shipping Group Co., Ltd. in 2005. It is a professional enterprise engaged in the design, manufacturing, and after-sales service of international standard containers and various special purpose containers. It also engages in the design of housing containers, the manufacturing of environmentally friendly garbage bins, pallets, metal structure manufacturing, non pressure tank bodies, container components, plate pretreatment, and steel structure processing and sales.
The company is located at No. 9 Tianshan Road, Economic and Technological Development Zone, Jinzhou City, Liaoning Province, China, in the central area of the Bohai Rim Economic Zone. Adjacent to the Beijing Shenyang Railway and connected to the Beijing Shenyang and Jinlian expressway networks. Adjacent to Dalian Port, Yingkou Port, Qinhuangdao New Port, and only 5 kilometers away from Jinzhou Port, it has a very advantageous geographical location and is currently the largest container manufacturing enterprise in Northeast China.








